Обяви За нас Контакти
Продава МЕЗОНЕТ
град София, Банишора
513 324 €
1 003 974.48 лв.

(2 104 €, 4 115.07 лв./m2)
Цената е с включено ДДС
История на цената
Коригирана в 12:05 на 26 януари, 2026 год.
Обявата е посетена 146 пъти.
Площ:
244 m2
Етаж:
2-ри от 7
Строителство:
Тухла, 2026 г.

Описание на имота:


БЕЗ КОМИСИОНА ОТ КУПУВАЧ!
Референтен код: 29155
Запази оглед тук: https://flatimo.bg/view-property/prostoren-mezonet-v-novostroyashta-se-sgrada-v-zhk-banishora-fc5cbcd5
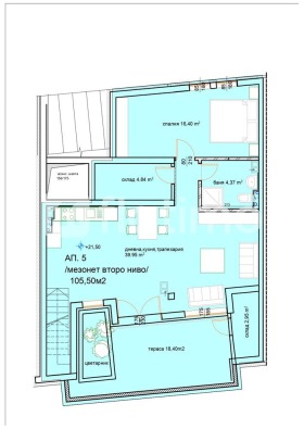
Многостаен мезонет в модерна жилищна сграда на отлична локация в ж.к. Банишора . Сградата се състои от сутерен и седем надземни етажа, включващи общо шест самостоятелни обекта.
Апартаментът е разположен на шести и седми етаж.
Обща площ: 244.44 кв.м (застроена площ 211.5кв.м + общи части 32.94 кв.м)
Разпределение:
Ниво 1: Две спални, една от които с тераса, просторна дневна с кухненски тракт ( 33 кв.м), два санитарни възела
Ниво 2: Една спалня, просторна дневна с кухненски тракт (40 кв.м.), голяма тераса с цветарник ( 19 кв.м. ), две складкови помещения и един санитарен възел
Паркиране: Възможност за закупуване на паркомясто на цени започващи от 19 000.
Строителството е започнало през октомври 2024 г. и ще бъде завършено до края на 2026 г. Сградата ще разполага с луксозни общи части и представително фоайе. Фасадата ще комбинира алуминиев композит, структурна мазилка, дървесен декор и естествен камък.
Дограма: Висок клас алуминиева дограма на белгийската фирма Reynaers
Отопление и климатизация: Мултисплит система климатици
Допълнителни удобства: Зарядна станция за електромобили, зони за паркиране на велосипеди
Апартаменти: Предлагат се още 3 тристайни апартамента на различни етажи на цени от 287,733.60 с ДДС.
Особености
Тухла
За контакт:
0878400008
Брокер:
Дигитална агенция Флатимо
0878400008
Офис: ул. Солунска 27
Още оферти от брокера: Продава | Дава под наем | Купува | Наема
Агенция:
ФЛАТИМО
0878400008
ФЛАТИМО logo
Медал за прослужено време
В imot.bg от 2021 г.
flatimo.imot.bg
Адрес:
област София, гр. София, София център, ул. Сан Стефано 22
http://www.flatimo.bg
ИЗПРАТИ ЗАПИТВАНЕ
ИЗПРАТИ ЗАПИТВАНЕТО

Продава МЕЗОНЕТ
град София, Банишора
Обява: 1f175984093833680

513 324 €
1 003 974.48 лв.
История на цената
(2 104 €, 4 115.07 лв./m2)

Цената е с включено ДДС
ЗАПАЗИ ОБЯВАТА

Местоположение: град София, Банишора

Допълнителни данни за имотите в района и сравнение с други райони

Покажи

Период

и 2 месеца

* Средните цени са определени чрез медианна стойност